




Własne Biuro
Możliwość Adaptacji
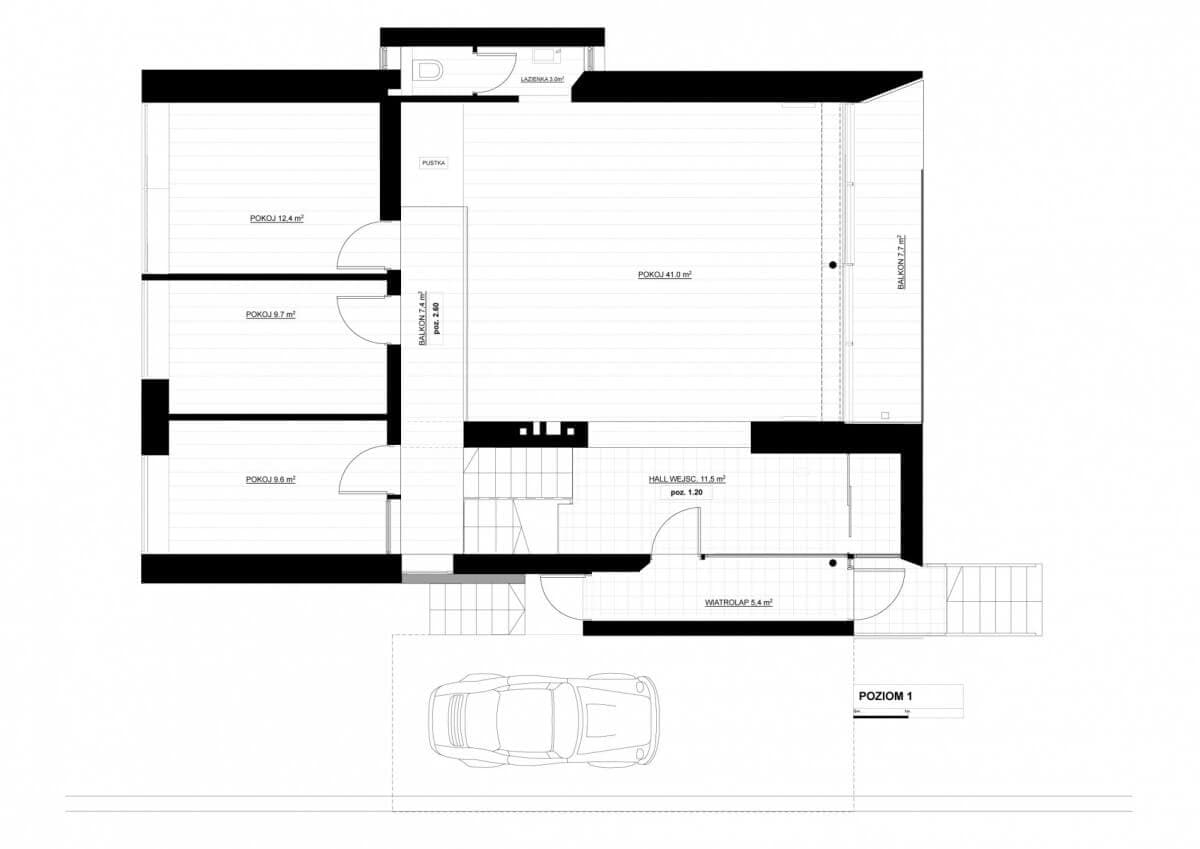
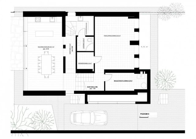
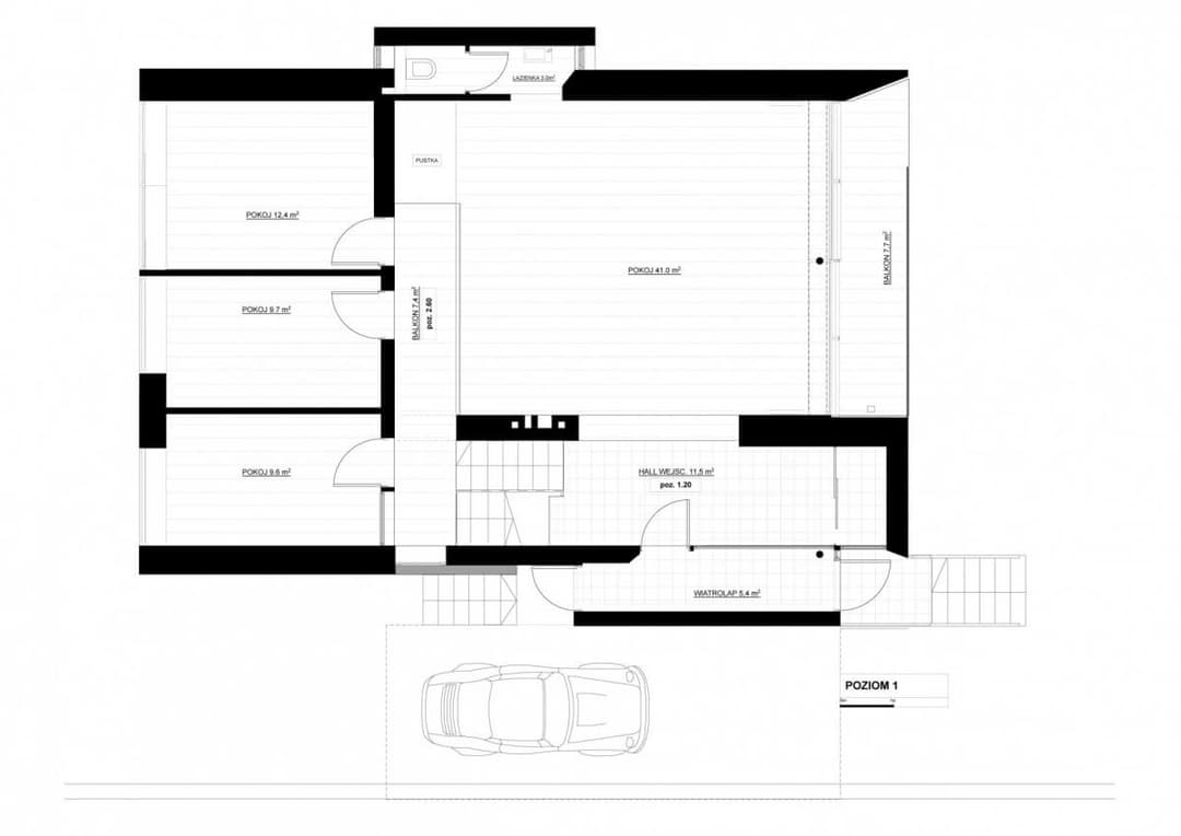
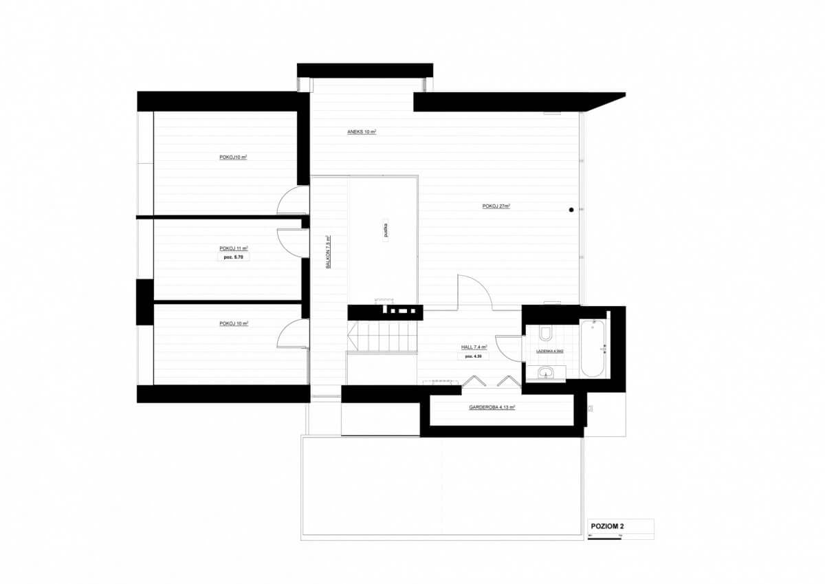
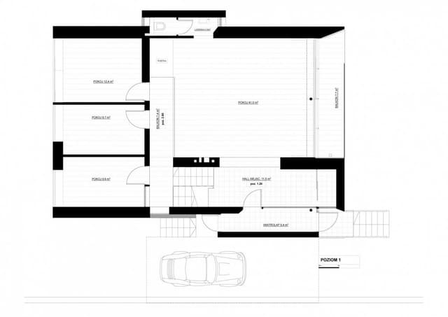
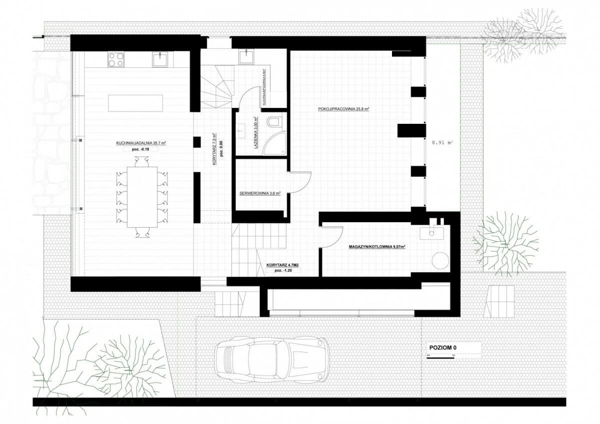
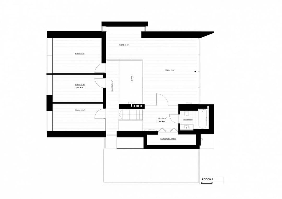
Wilanów Dom 330m2 Królewicza Jakuba to biurowiec położony na ul. Królewicza Jakuba w Wilanowie, jednej z najbardziej zielonych i spokojnych części Warszawy. Budynek przeszedł generalny remont i został przystosowany do prowadzenia działalności biurowej, oferując ponadczasowe wnętrza wykończone wysokiej jakości materiałami. Lokalizacja zapewnia szybki dojazd do centrum Warszawy – samochodem to zaledwie około 15 minut, a w okolicy dostępna jest pełna infrastruktura miejska.
W pobliżu biura znajdują się przystanki autobusowe linii 131, 163, 164, 180 oraz N31, co ułatwia codzienne dojazdy pracownikom i klientom. Dla osób zmotoryzowanych dostępne jest publiczne parkowanie na ulicy, a także prywatne miejsca parkingowe w sąsiednich budynkach lub na pobliskich parkingach. W samym budynku nie ma możliwości wynajęcia miejsc parkingowych podziemnych ani naziemnych.
W okolicy nie brakuje udogodnień – na szybkie zakupy można wybrać się do Żabki lub Społem Wola, a na lunch do restauracji takich jak Castello, OOH! Sushi&Grill czy Nova Sushi. Dla osób dbających o formę dostępny jest Fitness Club S4, a gości można zakwaterować w hotelu Dipservice.
Wilanów Dom 330m2 Królewicza Jakuba to propozycja dla firm, które cenią sobie funkcjonalność i wygodę. W okolicy znajdują się także szkoły międzynarodowe, przedszkola, kompleks parkowy przy Pałacu w Wilanowie oraz centra handlowe, takie jak Royal Wilanów czy Sadyba Best Mall.
Powierzchnia biurowa wynosi 330 m², a czynsz to 61,00 PLN/m², natomiast opłata eksploatacyjna wynosi 1,00 PLN/m². Jeśli masz pytania lub jesteś zainteresowany wynajmem biura w Wilanów Dom 330m2 Królewicza Jakuba, kliknij przycisk „Otrzymaj Ofertę”, a zespół ShareSpace szybko odpowie na Twoje pytania i przygotuje dedykowaną ofertę. W ShareSpace pomagamy w całym procesie najmu biura – od analizy potrzeb, przez prezentację najlepszych opcji, analizę kosztów, po wsparcie w negocjacjach i formalnościach – zupełnie bezpłatnie.

Wyślij zapytanie żeby otrzymać dedykowaną ofertę
Otrzymaj odpowiedź w ciągu 30 minut ⚡
Zaufali nam najlepsi
Własne Biuro
Możliwość Adaptacji
Niedostępne
Prysznic
Parking Dla Gości
Światłowód
Myjnia
Siłownia
Dostęp Dla Wózków
Kontrola Dostępu
Ładowarka Dla Aut
Recepcja
Ochrona 24/7
Otwierane Okna
Klimatyzacja
Czujnik Dymu
Zraszacze
Stojaki Na Rowery
Winda
Zobacz więcej ofert biur na stronie biura do wynajęcia Warszawa. Dla zespołów poniżej 30 osób lub umów najmu poniżej 3 lat zalecamy coworking Warszawa lub biura serwisowane Warszawa. To view this listing in English visit Offices Wilanów Dom 330m2 Królewicza Jakuba.